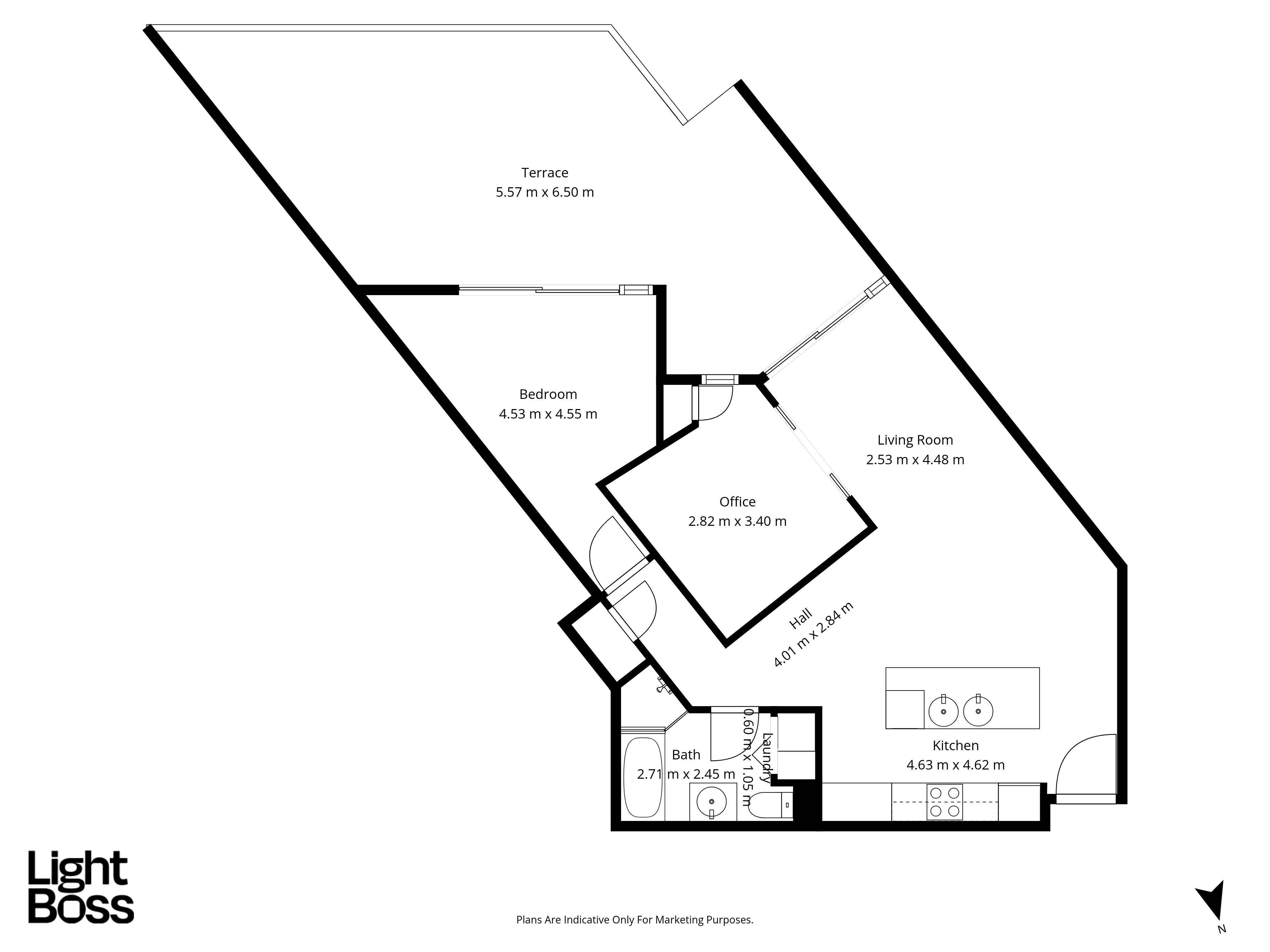
While photos show how a property looks, a floor plan shows how it works, its layout, size, flow, and spatial relationships. This powerful tool builds buyer confidence by revealing storage, extra toilets, and functional spaces not shown in photos or video.




While photos show how a property looks, a floor plan shows how it works, its layout, size, flow, and spatial relationships. This powerful tool builds buyer confidence by revealing storage, extra toilets, and functional spaces not shown in photos or video.








While photos show how a property looks, a floor plan shows how it works, its layout, size, flow, and spatial relationships. This powerful tool builds buyer confidence by revealing storage, extra toilets, and functional spaces not shown in photos or video.








While photos show how a property looks, a floor plan shows how it works, its layout, size, flow, and spatial relationships. This powerful tool builds buyer confidence by revealing storage, extra toilets, and functional spaces not shown in photos or video.



